Филтрирай резултатите
1-10 от 34
35 стр.

Методи на проектиране

Когато проектиращите прави са перпендикулярни на проекционната равнина, успоредното проектиране се нарича правоъгълно (ортогонално) проектиране...
13 стр.

Основни правила при оформяне на чертежите – формати, шрифтове, линии, мащаби. Геометрични построения. Чертеж на детайл по образец с геометрични построения

Дисциплината „Техническо чертане“, ("Техническо документиране", "Инженерна графика") е една от основните за техническите специалности. Тя регламентира начините и методите за оформяне на техническа документация в необходимия обем...
4 стр.

Упражнение по Инженерна графика

Упражнение за студенти върху първото контролно по Инженерна графика, ИМ, първи курс, бакалавър...
50 стр.

Разрези - правила за изобразяване

Видове разрези: прости разрези, сложни разрези, полуразрези, частични разрези. Основни правила при изпълнението на разрези...
12 стр.

Резбови съединения

Определение за резба, изобразяване и оразмеряване на резби, класификация на резбите, видове резбови съединения. Буквата в началото на означението показва вида на резбата. Първата цифра – външния диаметър...
12 стр.

Изобразяване на резбови елементи и съединения

Съединяването на два или повече машинни елемента може да стане по един от следните начини: разглобяеми съединения – разединяването на отделните елементи се осъществява без да се нанасят повреди на нито един от тях (клин, шпонка, щифт, винт, болт и др....
20 стр.

Сборни чертежи

Цялата лекция при Доц. Матев, полезна за студентите от всички специалности, които изучават дисциплината "инженерна графика"...
1 стр.

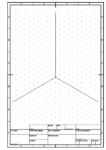
Бланка за чертаене на детайл

Бланка за чертаене на детайл от курсова задача по инженерна графика...
24 стр.

Лекция по инженерна графика

Предмет и задачи на ИГ. Конструкторски документи. Основи на изобразяването в ИГ...
3 стр.

Указания за курсова работа

Стъпки как най-лесно да създадете своята курсова работа по ИГ без проблем....